In het schitterende kasteel Daliënwaerd op landgoed Haverleij is deze sfeervolle woning met 2 terrassen gelegen met inpandige, extra brede garage! Deze moderne woning is o.a. voorzien van een royale living met openslaande deuren naar het zonnige terras met een uniek vrij uitzicht, luxe woonkeuken, 4 slaapkamers, 8 zonnepanelen en een A+ label!
Deze royale woning is uitermate goed onderhouden en biedt veel wooncomfort! Met 8 zonnepanelen, airconditioning (koelen en verwarmen), WTW installatie en HR++ beglazing is deze volledig geïsoleerde woning zeker energiezuinig te noemen. De woning beschikt zowel over een terras op het noordoosten, als op het zuidwesten. Zo is er altijd een plek naar eigen wens in de zon of schaduw te vinden! Tevens is er de mogelijkheid om een derde terras met veel privacy te realiseren.
De woning is keurig afgewerkt. Zo is de moderne laminaatvloer doorgelegd in de gehele woning. Tevens is er een schilderij ophangsysteem in een groot deel van de woning aanwezig.
Uniek aan deze kasteelwoning is de schitterende ligging in een natuurrijke omgeving met de bourgondische binnenstad op korte afstand!
Woonoppervlak 153 m² – Bruto inhoud 632 m³ – Perceel 81 m² – Bouwjaar 2006 – Energielabel A+.
Prachtig gesitueerd aan de golfbaan op het landgoed Haverleij, nabij de Maas in een mooi fiets- en wandelgebied en dichtbij diverse voorzieningen, zoals een supermarkt, basisschool, speeltuinen, kinderdagverblijf, golfbaan Haverleij (op loopafstand), prachtige natuurgebieden, uitvalswegen en winkels. Deze locatie is perfect voor de echte levensgenieter. U bent hier omringd door de natuur, waar eindeloos veel wandel- en fietstochten gemaakt kunnen worden. Het is gelegen in een bocht van de Maas en nabij recreatieplas Engelermeer. Daarnaast staat u binnen 7 autominuten / 15 a 20 fietsminuten in het bourgondische centrum van ‘s-Hertogenbosch en nabij uitvalswegen zoals A2 en A59. Kortom, een perfecte locatie!
Er valt nog véél meer te vertellen over deze prachtige woning. Wij nodigen u van harte uit voor een bezichtiging!
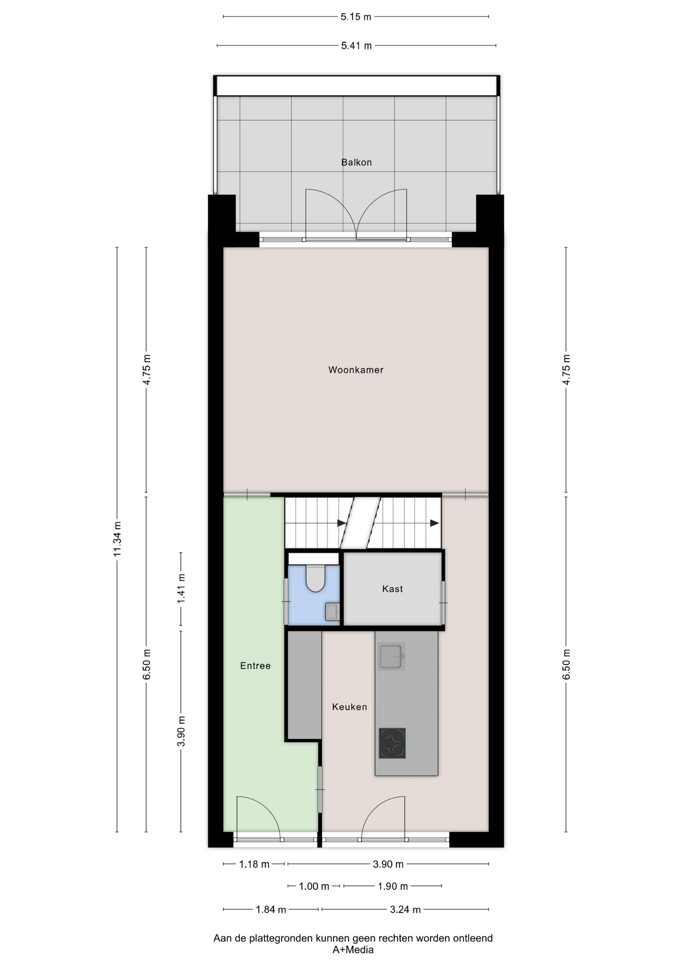
Indeling
Begane grond
De hal beschikt over een toiletruimte en de vaste trapopgang naar de eerste verdieping. Vanuit de hal zijn zowel de keuken als living bereikbaar.
Aan de achterzijde van de woning is de ruime living gesitueerd, voorzien van grote raampartijen en openslaande deuren naar het zonnige terras (zuidwesten). Door de openslaande deuren wordt de natuurrijke omgeving optimaal bij de woning betrokken. De ruimte is keurig afgewerkt met een moderne laminaatvloer die in de gehele woning is doorgelegd.
De chique woonkeuken (dec. 2023) is luxe ingericht met de volgende apparatuur: Bora inductie kookplaat met geïntegreerde afzuiging, wijnklimaatkast, vaatwasser, extra brede koelkast, vriezer, combi-oven en een oven met airfryer functie. Aan het keuken eiland is zitgelegenheid gecreëerd middels barkrukken.
Vanuit de keuken is het terras aan de voorzijde bereikbaar, met een fraai zicht over de royale binnentuin.
Eerste verdieping
De overloop biedt toegang aan 3 volwaardige slaapkamers, de complete badkamer en de vaste trap naar de tweede verdieping. De master bedroom aan de voorzijde van de woning is ca. 18 m² groot en de overige 2 slaapkamers zijn ca. 9,5 m² groot. Vanuit de slaapkamers is er een prachtig vrij zicht over het groene natuurgebied.
De badkamer beschikt over het volgende sanitair: een ligbad, douche, wastafel en een toilet. Tevens is er een designradiator en mechanische ventilatie aanwezig.
Tweede verdieping
Deze verdieping is eveneens van ruim formaat en een kastenwand dient als roomdivider. Achter de kastenwand is een praktische wasruimte gecreëerd.
De riante slaapkamer beschikt over ramen met elektrisch bedienbare (verduisterende) rolgordijnen aan de binnenzijde. De airconditioning kan zowel koelen als verwarmen.
Daarnaast beschikt deze verdieping over de omvormer voor de zonnepanelen, de WTW unit en de CV-ketel (Intergas 2019).
Terrassen + Garage
Zowel aan de voor- als achterzijde van de woning is er een heerlijk terras gecreëerd. Aan de achterzijde kunt u in alle privacy genieten van het weidse, groene uitzicht. Dit terras heeft een zonnige ligging op het zuidwesten.
Aan de voorzijde is het terras op het noordoosten gesitueerd, waardoor u hier kunt genieten van een kopje koffie in de ochtend zon. Tevens is er de mogelijkheid om een derde terras op de tweede verdieping te creëren met veel privacy.
De garage is inpandig bereikbaar en beschikt over een laadpaal en een elektrische roldeur. Er is parkeercapaciteit voor 2 auto’s. In de garage is de meterkast met watermeter gesitueerd. Daarnaast is er voldoende openbare parkeergelegenheid aanwezig.
(Deze brochure is met zorg samengesteld. Aan enige onjuist- en/of onvolkomenheden/maatvoeringen in de vermelde gegevens kunnen echter geen rechten ontleend worden).













































